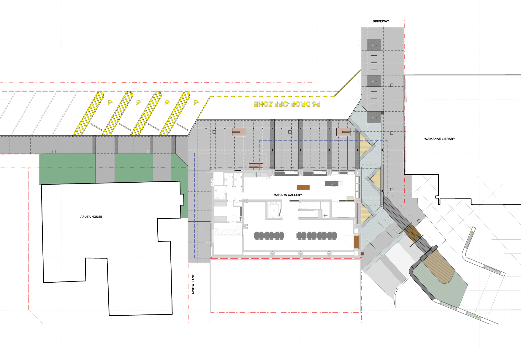
Integrating the landscape around the newly refurbished gallery with the Mahara Place civic space and Waikanae town centre.

The main entrance of the gallery opens towards Mahara Place, onto a unique paving pattern derived in collaboration with a mana whenua artist. This pattern is unique to the gallery entrance; it ties into the adjoining plaza and reflects the gallery's brand identity. Timber tiered seating is provided at the steps while keeping the space in front of the gallery open for spill-out events.

Worked with

Athfield Architects
Tracey-Lea Morgan
Miyamoto Engineers
335 Lighting Engineers
Mills Albert Contractors

Project date

2021 - 2024

At the north of the gallery, the landscape invites visitors to the civic space and gallery, complementing the architecture, and celebrating the unique frit pattern at the canopy above. Timber seating, bike parking, a drop-off zone and carparking was provided as part of the project.

Boffa Miskell landscape architects were responsible for developing the design and liaising with other consultants, contractors, and manufacturers. Closely working with Tracey-Lea Morgan to achieve a unique frontage to the building that relates to the recently completed Mahara Place while attaining its own identity.

image-5