Affordable housing for Māori hapu

A new subdivision being developed by the Ngā Potiki a Tamapahore Trust will see new houses built in Papamoa, including affordable housing for members of the Ngā Potiki hapu.

Boffa Miskell was engaged by Ngā Pōtiki a Tamapahore Trust to provide specialist urban design and landscape design advice and services, for the development of greenfield land in Pāpāmoa Beach, repatriated with Ngā Pōtiki hāpu as part of their Treaty Settlement.

Location

Bay of Plenty

Worked with

CGC Landscape Company
Peter Cross Management
Platform Agency
Stratum Consultants

Project date

2016

Boffa Miskell led the development of the overall masterplan and subdivision design and served as the lead design consultant through the consenting phases and construction stages. Boffa Miskell’s involvement from the inception of the project resulted in outcomes that deliver on the client’s kaupapa (philosophy) and tikanga (principles).

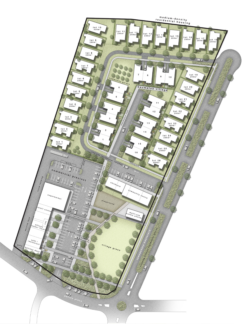
The brief had a strong focus on Maori values, particularly those relating to sustainability, relationship with the land, guardianship and communality. These values formed the foundations of the Manawa Subdivision - a community that will be composed of 300+ mixed-typology residential dwellings, including properties allocated to Ngā Pōtiki hāpu members, five public reserves, kaumatua village, commercial centre, childcare and community centre.

Integrated stormwater design cleanses water and restores the presence of indigenous plant species that are culturally significant. The provision of extensive public space inspires community connectedness and community. The allocation of housing for Ngā Pōtiki hāpu members and kaumatua ensures the ongoing presence, influence and guardianship of tangata whenua. The development of a commercial centre and community facilities nurtures and nourishes the community.

Development Control Guidelines have given site and building design direction to those developing the residential lots. The application of these guidelines has resulted in high-quality urban design outcomes, where sites are highly functional, have a positive relationship and interface with the street, and have a locally appropriate aesthetic, that is both diverse and cohesive.