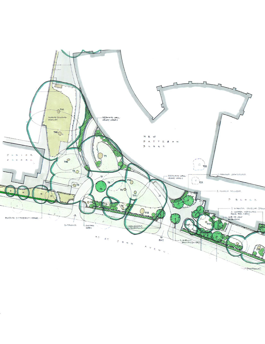
Adding new architecture while remaining sympathetic to the natural environment

Diocesan School for Girls built a new Centennial Building in 2000 - a curved, four storey building, housing a range of new facilities and 50 teaching spaces. The building was designed to sit amongst numerous protected trees including two scheduled Norfolk Island Pines. Boffa Miskell was part of a multi-disciplinary team to achieve the landscape development.

We prepared the Assessment of Landscape and Visual Effects and landscape plan and played a key role in the consultation with neighbours. We developed the detail design and documentation for the landscape works around the building, and supervised the implementation of the works, including managing the relocation of an existing Junior School playground.

The landscape design around this significant, busy facility succeeds due to effective consultation during planning, the mature trees, striking planting and attractive curving paths sympathetic with the adjacent building.

Location

Auckland

Project date

2000

image-5